Добро пожаловать на http://vipplan.ru

Випплан Кизляр - это тысячи проектов домов в нашем каталоге!

Вы всегда сможете найти для себя проект дома вашей мечты! Даже если этого не случилось, мы готовы в любую минуту предложить проект индивидуального дома.

Забыли пароль?
Вы еще не регистрировались?

Перейдите по ссылке ниже на страницу регистрации.

Регистрация...

Внимание!!!

В проектную документацию могут быть внесены изменения любой сложности, в соответствии в Вашими пожеланиями!

Полезные статьи

Фундамент под гараж

Обычно фундаменты под гараж делаются из бетонного раствора и заливаются, как монолит. Гаражные фундаменты так же можно укладывать из бетона с применением бутового камня. Такие фундаменты тоже считаются монолитными. В этом случае происходит экономия бетона....

Применение ленточных фундаментов

Большинство людей никогда не сталкивались с выбором фундамента, а, столкнувшись, не могут определиться с выбором. Ведущие специалисты в области строительства утверждают, что лучшим типом фундамент - ленточный фундамент. Как показывает статистика, ленточный фундамент очень популярен среди жителей нашей страны. ...

Проекты домов и коттеджей > Каталог проектов домов > Проект коттеджа с мансардой для узкого участка Vg984

Проект коттеджа с мансардой для узкого участка Vg984

Проект коттеджа с мансардой для узкого участка
Зарегистрируйтесь

Проект № Vg984


Техническое описание
Общая площадь: 197.61 м2
Жилая площадь: 121.11 м2
Высота здания: 8.25 м
Размеры дома: 20.98м×9.96м
Кол-во комнат: 6
Цокольный этаж: нет
Гараж: нет
Мансарда: есть

Kонструкция
Фундамент: Ленточный
Перекрытия: Деревянные балки
Материал стен: Газобетон

Архитектурный раздел
Конструктивный раздел
Инженерный раздел
АР+КР - 60 000 (Со скидкой 20%)
АР+КР+ИР - 129 300 (Со скидкой 50%)
Проект индивидуального одноэтажного жилого дома с размерами 20,984х9,96 м. Наружная отделка здания – штукатурка. Цоколь – клинкерная плитка. Фундамент – ленточный монолитный, ж/б. Наружные стены запроектированы из: газобетонного блока Внутренние стены и перегородки: из газобетонного блока Перекрытие межэтажное – деревянные балки перекрытия. Материал кровли – металлочерепица. Окна - металлопластиковые, выполненные по индивидуальному заказу.
Генплан застройки участка / Паспорт проекта 7000 руб / 10000 руб
Инженерный раздел (полный) 69300 руб (99000 руб)
Смета на строительство 49500 руб
Теплотехнический расчет материалов стен Бесплатно
Стоимость проекта со незначительнми изменениями 70050 руб
Стоимость проекта со средними изменениями* 84900 руб
Стоимость проекта со значительными изменениями** 88900 руб

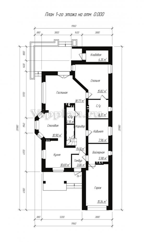
План первого этажа


Тамбур — 3,06 м2
Коридор — 9,49 м2
Гостиная — 18,77 м2
Столовая — 10,90 м2
Кухня — 10,69 м2
Кладовая — 4,35 м2
Спальня — 15,82 м2
С/у — 6,17 м2
Кабинет — 7,96 м2
Бойлерная — 5,98 м2
Гараж — 15,34 м2

Проект коттеджа с мансардой для узкого участка

Проект коттеджа с мансардой для узкого участка

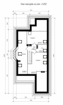
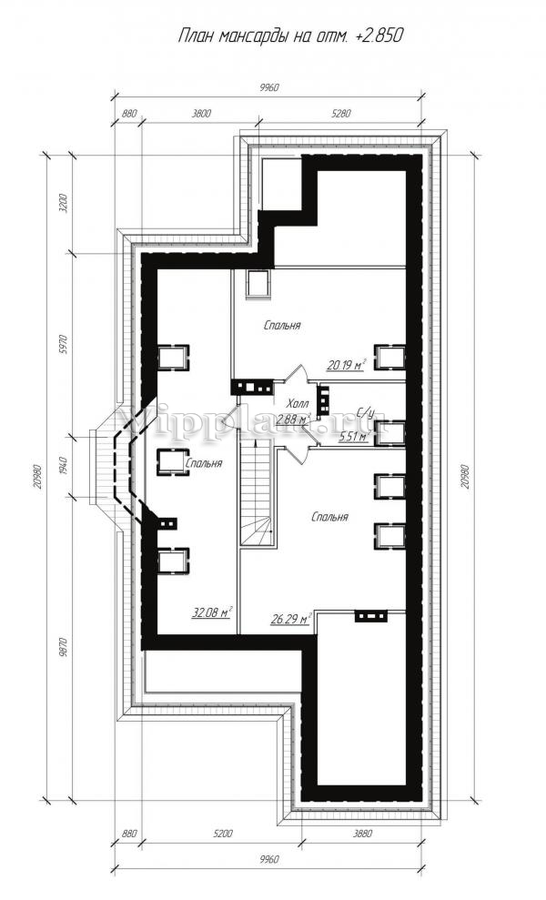
План второго этажа


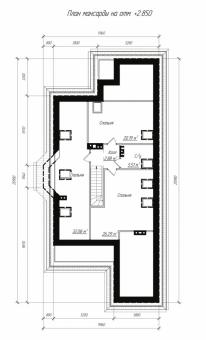
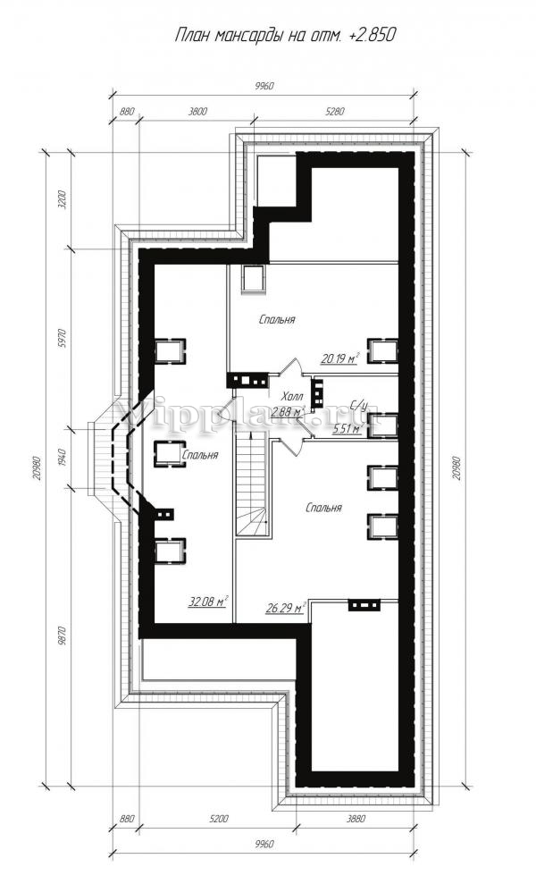
Холл — 2,88 м2
Спальня — 20,19 м2
Спальня — 32,08 м2
Спальня — 26,29 м2
С/у — 5,51 м2

План мансардного этажа



Проект коттеджа с мансардой для узкого участка Проект коттеджа с мансардой для узкого участка Проект коттеджа с мансардой для узкого участка Проект коттеджа с мансардой для узкого участка
Внесение изменений и привязка к участку строительства

В любой из проектов от компании VIPplan - Кизляр по вашему желанию могут быть внесены изменения в материалы стен, материалы наружной отделки дома, а также будет произведена адаптация проекта под конкретный регион строительства (с учетом грунтов региона, геологических особенностей вашего участка и местных климатических условий) - БЕСПЛАТНО !!! (кроме проектов со скидкой и проектов наших партнеров).

Любой из проектов, размещенных на сайте kizlyar.vipplan.ru мы можем выполнить из требуемых вам строительных материалов: ячеистый бетон (газобетон, пеноблок), керамоблок, кирпич, шлакоблок, бетонный блок, дерево (брус, клееный брус), каркасная технология (деревянный каркас, металлокаркас (ЛСТК)).

Фасад дома и его наружную отделку так же возможно выполнить с применением различных облицовочных материалов: структурной штукатурки, (с утеплителем и без), сайдингом (пластиковый или металлосайдинг), фиброплитами, кирпича.

 
6 Избранные
проекты

Доставка проектов по России: Москва (Московская область), Санкт-Петербург (Ленинградская область), Краснодар, Ростов-на-Дону, Ставрополь, Сочи, Волгоград, Новосибирск, Белгород, Брянск, Воронеж, Саратов, Хабаровск, Астрахань, Нальчик, Владикавказ, Екатеринбург, Тюмень, Самара, Нижний Новгород, Казань, Пермь, Уфа, Челябинск, Красноярск, Ханты-Мансийск, Иркутск, Курган, Оренбург, Омск, Томск, Барнаул, Новокузнецк, Кемерово, Абакан, Чита, Якутск, Южно-Сахалинск, Петропавловск-Камчатский и страны ближнего зарубежья: Белоруссия, Украина, Казахстан