Добро пожаловать на http://vipplan.ru

Випплан Кизляр - это тысячи проектов домов в нашем каталоге!

Вы всегда сможете найти для себя проект дома вашей мечты! Даже если этого не случилось, мы готовы в любую минуту предложить проект индивидуального дома.

Забыли пароль?
Вы еще не регистрировались?

Перейдите по ссылке ниже на страницу регистрации.

Регистрация...

Внимание!!!

В проектную документацию могут быть внесены изменения любой сложности, в соответствии в Вашими пожеланиями!

Полезные статьи

Приготовление раствора для наливного пола

Если вы хотите чтобы пол получился ровным, наливные полы – лучший вариант. Особое внимание следует уделить приготовлению раствора. А все потому, что после нанесения на цементную стяжку или бетонное основание внести коррективы или изменить что-либо уже не получится. Поэтому к замешиванию раствора стоит подходить очень внимательно....

Зачем нужен проект дома?

Зачем нужен проект? - спросите вы. Проект дома является важной и неотъемлемой частью при строительстве дома. После покупки проекта, вы получите разрешение на строительство, предоставив его в местную архитектуру, а после, с его помощью, построите дом....

Проекты домов и коттеджей > Каталог проектов домов > Одноэтажный дом с мансардой, гаражом, террасой и балконами Vg2592

Одноэтажный дом с мансардой, гаражом, террасой и балконами Vg2592

Одноэтажный дом с мансардой, гаражом, террасой и балконами
Зарегистрируйтесь

Проект № Vg2592


Техническое описание
Общая площадь: 205.42 м2
Жилая площадь: 113.96 м2
Высота здания: 9 м
Размеры дома: 14.82м×10.74м
Кол-во комнат: 6
Цокольный этаж: нет
Гараж: нет
Мансарда: есть

Kонструкция
Фундамент: монолитная плита
Перекрытия: балки

Архитектурный раздел
Конструктивный раздел
Инженерный раздел
АР+КР - 64 000 (Со скидкой 20%)
АР+КР+ИР - 135 750 (Со скидкой 50%)
Одноэтажный дом с мансардой, гаражом, террасой и балконами с размерами здания 14,82 x 10,74 м. Фундамент - монолитная ж/б плита. Наружные стены - деревянный каркас и отделка сайдингом. Внутренние стены - деревянный каркас. Перегородки - гипсокартон на металлическом каркасе. Пол 1 этажа - пол по фундаментной плите. Межэтажное перекрытие - деревянные балки перекрытия. Крыша - многоскатная. Кровля - металлочерепица. Лестница - деревянная. Окна - металлопластиковые.
Генплан застройки участка / Паспорт проекта 7000 руб / 10000 руб
Инженерный раздел (полный) 71750 руб (102500 руб)
Смета на строительство 51250 руб
Теплотехнический расчет материалов стен Бесплатно
Стоимость проекта со незначительнми изменениями 74850 руб
Стоимость проекта со средними изменениями* 90300 руб
Стоимость проекта со значительными изменениями** 94400 руб

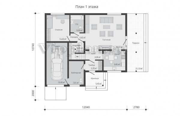
План первого этажа


Тамбур - 3,78 м2
Холл - 3,58 м2
Гостиная - 30,19 м2
С/у - 5,20 м2
Кухня - 9,82 м2
Кладовая - 3,35 м2
Спальня - 13,26 м2
Бойлерная - 7,81 м2
Гараж - 19,28 м2
Коридор - 2,62 м2

План мансардного этажа


Холл - 13,83 м2
С/у - 8,10 м2
С/у - 5,07 м2
Спальня - 17,67 м2
Спальня - 20,09 м2
Спальня - 11,18 м2
Спальня - 10,24 м2
Спальня - 11,34 м2
Гардероб - 4,65 м2
Балкон - 3,93 м2
Балкон - 0,43 м2
Одноэтажный дом с мансардой, гаражом, террасой и балконами Одноэтажный дом с мансардой, гаражом, террасой и балконами Одноэтажный дом с мансардой, гаражом, террасой и балконами Одноэтажный дом с мансардой, гаражом, террасой и балконами
Внесение изменений и привязка к участку строительства

В любой из проектов от компании VIPplan - Кизляр по вашему желанию могут быть внесены изменения в материалы стен, материалы наружной отделки дома, а также будет произведена адаптация проекта под конкретный регион строительства (с учетом грунтов региона, геологических особенностей вашего участка и местных климатических условий) - БЕСПЛАТНО !!! (кроме проектов со скидкой и проектов наших партнеров).

Любой из проектов, размещенных на сайте kizlyar.vipplan.ru мы можем выполнить из требуемых вам строительных материалов: ячеистый бетон (газобетон, пеноблок), керамоблок, кирпич, шлакоблок, бетонный блок, дерево (брус, клееный брус), каркасная технология (деревянный каркас, металлокаркас (ЛСТК)).

Фасад дома и его наружную отделку так же возможно выполнить с применением различных облицовочных материалов: структурной штукатурки, (с утеплителем и без), сайдингом (пластиковый или металлосайдинг), фиброплитами, кирпича.

 
6 Избранные
проекты

Доставка проектов по России: Москва (Московская область), Санкт-Петербург (Ленинградская область), Краснодар, Ростов-на-Дону, Ставрополь, Сочи, Волгоград, Новосибирск, Белгород, Брянск, Воронеж, Саратов, Хабаровск, Астрахань, Нальчик, Владикавказ, Екатеринбург, Тюмень, Самара, Нижний Новгород, Казань, Пермь, Уфа, Челябинск, Красноярск, Ханты-Мансийск, Иркутск, Курган, Оренбург, Омск, Томск, Барнаул, Новокузнецк, Кемерово, Абакан, Чита, Якутск, Южно-Сахалинск, Петропавловск-Камчатский и страны ближнего зарубежья: Белоруссия, Украина, Казахстан