Добро пожаловать на http://vipplan.ru

Випплан Кизляр - это тысячи проектов домов в нашем каталоге!

Вы всегда сможете найти для себя проект дома вашей мечты! Даже если этого не случилось, мы готовы в любую минуту предложить проект индивидуального дома.

Забыли пароль?
Вы еще не регистрировались?

Перейдите по ссылке ниже на страницу регистрации.

Регистрация...

Внимание!!!

В проектную документацию могут быть внесены изменения любой сложности, в соответствии в Вашими пожеланиями!

Полезные статьи

Приготовление раствора для наливного пола

Если вы хотите чтобы пол получился ровным, наливные полы – лучший вариант. Особое внимание следует уделить приготовлению раствора. А все потому, что после нанесения на цементную стяжку или бетонное основание внести коррективы или изменить что-либо уже не получится. Поэтому к замешиванию раствора стоит подходить очень внимательно....

Выбор участка для строительства дома

Если вы решили приобрести участок земли и построить на нем дом или дачу. То данная статья специально для вас. А так же мы поможем вам в выборе проекта для выбранного вами участка....

Проекты домов и коттеджей > Каталог проектов домов > Проект одноэтажного загородного коттеджа с подвалом Vg2469

Проект одноэтажного загородного коттеджа с подвалом Vg2469

Проект одноэтажного загородного коттеджа с подвалом
Зарегистрируйтесь

Проект № Vg2469


Техническое описание
Общая площадь: 172.93 м2
Жилая площадь: 88.95 м2
Высота здания: 9.85 м
Размеры дома: 10.62м×13.02м
Кол-во комнат: 4
Цокольный этаж: есть
Гараж: есть
Мансарда: есть

Kонструкция
Фундамент: ленточный монолитный ж/б под несущими стенами
Перекрытия: монолитная ж/б плита, деревянные балки

Архитектурный раздел
Конструктивный раздел
Инженерный раздел
АР+КР - 56 000 (Со скидкой 20%)
АР+КР+ИР - 116 550 (Со скидкой 50%)
Модель проекта индивидуального компактного одноэтажного жилого дома с мансардой и подвалом с размерами здания 10,62 x 13,02 м. Наружная отделка здания – облицовочный кирпич. Фундамент – ленточный монолитный ж/б под несущими стенами Наружные стены – газобетон. Внутренние стены - газобетон. Перегородки - газобетон, каркасные с ГКЛ. Пол подвала - пол по грунту. Пол 1 этажа - монолитная ж/б плита, частично пол по грунту. Межэтажное перекрытие - деревянные балки. Крыша двускатная. Кровля – металлочерепица, рулонно-мембранное покрытие. Окна — металлопластиковые.
Генплан застройки участка / Паспорт проекта 7000 руб / 10000 руб
Инженерный раздел (полный) 60550 руб (86500 руб)
Смета на строительство 43250 руб
Теплотехнический расчет материалов стен Бесплатно
Стоимость проекта со незначительнми изменениями 65650 руб
Стоимость проекта со средними изменениями* 78700 руб
Стоимость проекта со значительными изменениями** 82100 руб

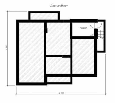
План цокольного этажа


Помещение — 7,87 м2

План первого этажа


Тамбур — 3,2 м2
Бойлерная — 5,06 м2
Холл — 6,13 м2
Кладовая — 1,89 м2
Кабинет — 12 м2
Гостиная — 26 м2
Кухня — 12,25 м2
Гараж — 28,7 м2
Мансарда

План мансардного этажа



Проект одноэтажного загородного коттеджа с подвалом Проект одноэтажного загородного коттеджа с подвалом Проект одноэтажного загородного коттеджа с подвалом Проект одноэтажного загородного коттеджа с подвалом
Внесение изменений и привязка к участку строительства

В любой из проектов от компании VIPplan - Кизляр по вашему желанию могут быть внесены изменения в материалы стен, материалы наружной отделки дома, а также будет произведена адаптация проекта под конкретный регион строительства (с учетом грунтов региона, геологических особенностей вашего участка и местных климатических условий) - БЕСПЛАТНО !!! (кроме проектов со скидкой и проектов наших партнеров).

Любой из проектов, размещенных на сайте kizlyar.vipplan.ru мы можем выполнить из требуемых вам строительных материалов: ячеистый бетон (газобетон, пеноблок), керамоблок, кирпич, шлакоблок, бетонный блок, дерево (брус, клееный брус), каркасная технология (деревянный каркас, металлокаркас (ЛСТК)).

Фасад дома и его наружную отделку так же возможно выполнить с применением различных облицовочных материалов: структурной штукатурки, (с утеплителем и без), сайдингом (пластиковый или металлосайдинг), фиброплитами, кирпича.

 
6 Избранные
проекты

Доставка проектов по России: Москва (Московская область), Санкт-Петербург (Ленинградская область), Краснодар, Ростов-на-Дону, Ставрополь, Сочи, Волгоград, Новосибирск, Белгород, Брянск, Воронеж, Саратов, Хабаровск, Астрахань, Нальчик, Владикавказ, Екатеринбург, Тюмень, Самара, Нижний Новгород, Казань, Пермь, Уфа, Челябинск, Красноярск, Ханты-Мансийск, Иркутск, Курган, Оренбург, Омск, Томск, Барнаул, Новокузнецк, Кемерово, Абакан, Чита, Якутск, Южно-Сахалинск, Петропавловск-Камчатский и страны ближнего зарубежья: Белоруссия, Украина, Казахстан