Добро пожаловать на http://vipplan.ru

Випплан Кизляр - это тысячи проектов домов в нашем каталоге!

Вы всегда сможете найти для себя проект дома вашей мечты! Даже если этого не случилось, мы готовы в любую минуту предложить проект индивидуального дома.

Забыли пароль?
Вы еще не регистрировались?

Перейдите по ссылке ниже на страницу регистрации.

Регистрация...

Внимание!!!

В проектную документацию могут быть внесены изменения любой сложности, в соответствии в Вашими пожеланиями!

Полезные статьи

Советы по проектированию дома

Представляем Вашему вниманию несколько советов по проектированию дома. Все что касается выбора участка, размещению дома на участке, подбора проекта на строительство дома, советы по выбору технологии строительства и материалов и т.д....

Мероприятия по получению разрешения на строительство в Кизляре

Хотите построить дом в Кизляре? Не знаете с чего начать? Для начала, нужно заказать проект, а после получить разрешение на строительство. ...

Проекты домов и коттеджей > Каталог проектов домов > Проект стильного загородного коттеджа Vg2329

Проект стильного загородного коттеджа Vg2329

Проект стильного загородного коттеджа
Зарегистрируйтесь

Проект № Vg2329


Техническое описание
Общая площадь: 325.37 м2
Жилая площадь: 145.83 м2
Высота здания: 9.5 м
Размеры дома: 10.78м×16.48м
Кол-во комнат: 5
Цокольный этаж: есть
Гараж: есть
Мансарда: есть

Kонструкция
Фундамент: монолитная ж/б плита
Перекрытия: сборные ж/б плиты
Материал стен: Бетонные блоки

Архитектурный раздел
Конструктивный раздел
Инженерный раздел
Смета на строительство
АР+КР - 84 000 (Со скидкой 20%)
АР+КР+ИР - 197 750 (Со скидкой 50%)
Проект индивидуального одноэтажного жилого дома с мансардой и подвалом с размерами здания 10,78 x 16,48 м. Наружная отделка здания –твинблоки. Фундамент – монолитная ж/б плита. Наружные стены -твинблоки. Внутренние стены -твинблоки. Перегородки – твинблоки. Пол первого этажа - пол по монолитной плите. Межэтажное перекрытие - сборные ж/б плиты Крыша многоскатная. Кровля – битумная черепица. Окна — металлопластиковые
Генплан застройки участка / Паспорт проекта 7000 руб / 10000 руб
Инженерный раздел (полный) 113750 руб (162500 руб)
Смета на строительство 60938 руб (81250 руб)
Теплотехнический расчет материалов стен Бесплатно
Стоимость проекта со незначительнми изменениями 96850 руб
Стоимость проекта со средними изменениями* 121300 руб
Стоимость проекта со значительными изменениями** 127800 руб

План цокольного этажа


Помещение1 — 11,56 кв м
Комната — 30,41 кв м
Спортзал — 23,4 кв м
Парилка — 5,79 кв м
Душевая — 5,96 кв м
Кладовая — 9,60 кв м
Помещение2 — 29,70 кв м

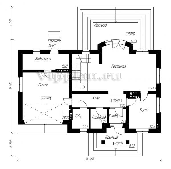
План первого этажа


Тамбур — 3,42 кв м
Холл — 9,96 кв м
С/у — 4,44 кв м
Гардероб — 4,07 кв м
Гостиная — 37,43 кв м
Кухня — 12,14 кв м
Бойлерная — 9,60 кв м
Гараж — 29,7 кв м

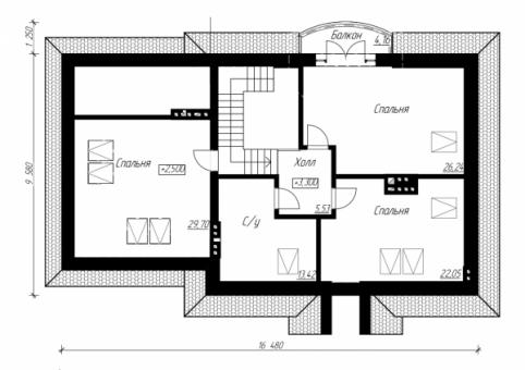
План мансардного этажа


Холл — 5,53 кв м
Спальня — 26,24 кв м
Спальня — 22,05 кв м
Спальня — 29,7 кв м
С/у — 13,42 кв м
Проект стильного загородного коттеджа Проект стильного загородного коттеджа Проект стильного загородного коттеджа Проект стильного загородного коттеджа
Внесение изменений и привязка к участку строительства

В любой из проектов от компании VIPplan - Кизляр по вашему желанию могут быть внесены изменения в материалы стен, материалы наружной отделки дома, а также будет произведена адаптация проекта под конкретный регион строительства (с учетом грунтов региона, геологических особенностей вашего участка и местных климатических условий) - БЕСПЛАТНО !!! (кроме проектов со скидкой и проектов наших партнеров).

Любой из проектов, размещенных на сайте kizlyar.vipplan.ru мы можем выполнить из требуемых вам строительных материалов: ячеистый бетон (газобетон, пеноблок), керамоблок, кирпич, шлакоблок, бетонный блок, дерево (брус, клееный брус), каркасная технология (деревянный каркас, металлокаркас (ЛСТК)).

Фасад дома и его наружную отделку так же возможно выполнить с применением различных облицовочных материалов: структурной штукатурки, (с утеплителем и без), сайдингом (пластиковый или металлосайдинг), фиброплитами, кирпича.

 
6 Избранные
проекты

Доставка проектов по России: Москва (Московская область), Санкт-Петербург (Ленинградская область), Краснодар, Ростов-на-Дону, Ставрополь, Сочи, Волгоград, Новосибирск, Белгород, Брянск, Воронеж, Саратов, Хабаровск, Астрахань, Нальчик, Владикавказ, Екатеринбург, Тюмень, Самара, Нижний Новгород, Казань, Пермь, Уфа, Челябинск, Красноярск, Ханты-Мансийск, Иркутск, Курган, Оренбург, Омск, Томск, Барнаул, Новокузнецк, Кемерово, Абакан, Чита, Якутск, Южно-Сахалинск, Петропавловск-Камчатский и страны ближнего зарубежья: Белоруссия, Украина, Казахстан