Добро пожаловать на http://vipplan.ru

Випплан Кизляр - это тысячи проектов домов в нашем каталоге!

Вы всегда сможете найти для себя проект дома вашей мечты! Даже если этого не случилось, мы готовы в любую минуту предложить проект индивидуального дома.

Забыли пароль?
Вы еще не регистрировались?

Перейдите по ссылке ниже на страницу регистрации.

Регистрация...

Внимание!!!

В проектную документацию могут быть внесены изменения любой сложности, в соответствии в Вашими пожеланиями!

Полезные статьи

Укладка тротуарной плитки

При укладке тротуарной плитки, необходимо соблюдать технологию, во избежание, разрушения и расшатывания покрытия. Первый этап - подготовка основания.  ...

Системы утепления фасада

Основные тепловые потери происходят через стены, фундамент и крышу. Уменьшить их можно с помощью утеплителя, создав внутри дома оптимальный для жизни климат, с достаточно ровным температурным режимом и низкой влажностью....

Проекты домов и коттеджей > Каталог проектов домов > Проект удобного одноэтажного дома Vg2248

Проект удобного одноэтажного дома Vg2248

Проект удобного одноэтажного дома
Зарегистрируйтесь

Проект № Vg2248


Техническое описание
Общая площадь: 110.13 м2
Жилая площадь: 69.6 м2
Высота здания: 7 м
Размеры дома: 14.06м×14.73м
Кол-во комнат: 4
Цокольный этаж: нет
Гараж: нет
Мансарда: нет

Kонструкция
Фундамент: Монолитная ж/б плита
Перекрытия: Деревянные балки
Материал стен: Бетонные блоки

Архитектурный раздел
Конструктивный раздел
Инженерный раздел
АР+КР - 48 000 (Со скидкой 20%)
АР+КР+ИР - 86 500 (Со скидкой 50%)
Проект индивидуального одноэтажного жилого дома с размерами здания 14,06 x 14,73 м. Наружная отделка здания – керамический облицовочный кирпич и деревянные панели. Фундамент – монолитная ж/б плита (под всей площадью дома). Наружные стены – пенобетонный блок с утеплителем, воздушным зазором и отделкой керамическим облицовочным кирпичом и деревянными панелями. Внутренние стены – пенобетонный блок. Перегородки – пенобетонный блок. Пол этажа – пол по фундаментной плите. Межэтажное чердачное – деревянные балки перекрытия. Крыша – многоскатная. Кровля – металлочерепица. Окна – металлопластиковые.
Генплан застройки участка / Паспорт проекта 7000 руб / 10000 руб
Инженерный раздел (полный) 38500 руб (55000 руб)
Смета на строительство 27500 руб
Теплотехнический расчет материалов стен Бесплатно
Стоимость проекта со незначительнми изменениями 57250 руб
Стоимость проекта со средними изменениями* 65500 руб
Стоимость проекта со значительными изменениями** 67700 руб

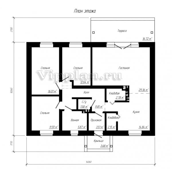
План первого этажа


Прихожая — 3,51 кв м
Холл - 9,81 кв м
Спальня - 11,59 кв м
Спальня - 16,01 кв м
Спальня - 12,64 кв м
Гостиная - 29,36 кв м
Кухня - 14,84 кв м
Кладовая - 2,78 кв м
Кладовая - 2,15 кв м
С/у - 1,58 кв м
Ванная - 5,87 кв м
Проект удобного одноэтажного дома Проект удобного одноэтажного дома Проект удобного одноэтажного дома Проект удобного одноэтажного дома

Модификации проектов

Внесение изменений и привязка к участку строительства

В любой из проектов от компании VIPplan - Кизляр по вашему желанию могут быть внесены изменения в материалы стен, материалы наружной отделки дома, а также будет произведена адаптация проекта под конкретный регион строительства (с учетом грунтов региона, геологических особенностей вашего участка и местных климатических условий) - БЕСПЛАТНО !!! (кроме проектов со скидкой и проектов наших партнеров).

Любой из проектов, размещенных на сайте kizlyar.vipplan.ru мы можем выполнить из требуемых вам строительных материалов: ячеистый бетон (газобетон, пеноблок), керамоблок, кирпич, шлакоблок, бетонный блок, дерево (брус, клееный брус), каркасная технология (деревянный каркас, металлокаркас (ЛСТК)).

Фасад дома и его наружную отделку так же возможно выполнить с применением различных облицовочных материалов: структурной штукатурки, (с утеплителем и без), сайдингом (пластиковый или металлосайдинг), фиброплитами, кирпича.

 
6 Избранные
проекты

Доставка проектов по России: Москва (Московская область), Санкт-Петербург (Ленинградская область), Краснодар, Ростов-на-Дону, Ставрополь, Сочи, Волгоград, Новосибирск, Белгород, Брянск, Воронеж, Саратов, Хабаровск, Астрахань, Нальчик, Владикавказ, Екатеринбург, Тюмень, Самара, Нижний Новгород, Казань, Пермь, Уфа, Челябинск, Красноярск, Ханты-Мансийск, Иркутск, Курган, Оренбург, Омск, Томск, Барнаул, Новокузнецк, Кемерово, Абакан, Чита, Якутск, Южно-Сахалинск, Петропавловск-Камчатский и страны ближнего зарубежья: Белоруссия, Украина, Казахстан