Добро пожаловать на http://vipplan.ru

Випплан Кизляр - это тысячи проектов домов в нашем каталоге!

Вы всегда сможете найти для себя проект дома вашей мечты! Даже если этого не случилось, мы готовы в любую минуту предложить проект индивидуального дома.

Забыли пароль?
Вы еще не регистрировались?

Перейдите по ссылке ниже на страницу регистрации.

Регистрация...

Внимание!!!

В проектную документацию могут быть внесены изменения любой сложности, в соответствии в Вашими пожеланиями!

Полезные статьи

Мероприятия по получению разрешения на строительство в Кизляре

Хотите построить дом в Кизляре? Не знаете с чего начать? Для начала, нужно заказать проект, а после получить разрешение на строительство. ...

Правильная изоляция подвала

Какой выбрать материал, как правильно выполнить работу, перед началом изоляции подвала какие подготовительно-строительные работы следует провести и какой момент играет правильное выполнение работ. Последние несколько лет придали много хлопот жильцам домов, увлажнив им подвалы. Этот период показал насколько важно обеспечить надлежащую защиту зданий от грунтовых вод и воздействия влаги....

Проекты домов и коттеджей > Каталог проектов домов > Проект двухэтажного дома с гаражом Vg2227

Проект двухэтажного дома с гаражом Vg2227

Проект двухэтажного дома с гаражом
Зарегистрируйтесь

Проект № Vg2227


Техническое описание
Общая площадь: 192.85 м2
Жилая площадь: 108.05 м2
Высота здания: 9.59 м
Размеры дома: 9.8м×13.1м
Кол-во комнат: 5
Цокольный этаж: нет
Гараж: нет
Мансарда: нет

Kонструкция
Фундамент: ленточный
Перекрытия: сборные ж/б плиты
Материал стен: Бетонные блоки

Архитектурный раздел
Конструктивный раздел
АР+КР - 60 000 (Со скидкой 20%)
Проект индивидуального двухэтажного жилого дома с размерами здания 9,80 x 13,10 м. Фундамент – ленточный монолитный. Наружные стены – блок кремнегранит. Внутренние стены – газобетон. Перегородки – газобетон. Пол первого этажа – пол по грунту. Межэтажные перекрытия –сборные ж/б. Чердачные перекрытия - деревянные балки перекрытия. Перемычки: монолитные ж/б. Крыша – четырехскатная. Кровля – металлочерепица. Окна – металлопластиковые. Лестница – металлическая (деревянная по металлическому каркасу).
Генплан застройки участка / Паспорт проекта 7000 руб / 10000 руб
Инженерный раздел (полный) 96500 руб
Смета на строительство 48250 руб
Теплотехнический расчет материалов стен Бесплатно
Стоимость проекта со незначительнми изменениями 70150 руб
Стоимость проекта со средними изменениями* 84700 руб
Стоимость проекта со значительными изменениями** 88500 руб

План первого этажа


Тамбур — 7,52 кв м
Холл — 3,44 кв м
Кладовая — 2,97 кв м
Кабинет — 11,29 кв м
Гостиная-столовая — 30,54 кв м
Бойлерная — 7,95 кв м
Гараж — 19,44 кв м

Проект двухэтажного дома с гаражом

Проект двухэтажного дома с гаражом

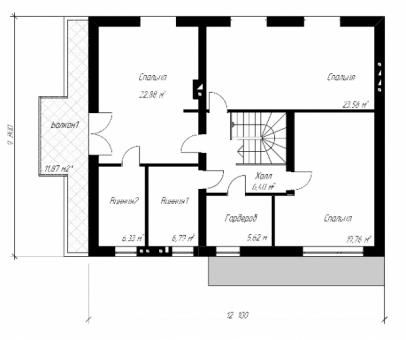
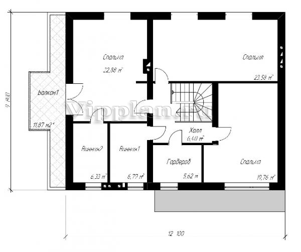
План второго этажа


Холл — 6,4 м2 Спальня — 23,58 кв м
Спальня — 19,76 кв м
Гардероб — 5,62 кв м
Спальня — 22,38 кв м
Ванная1 — 6,79 кв м
Ванная2 — 6,33 кв м
Балкон — 11,87 кв м
Проект двухэтажного дома с гаражом Проект двухэтажного дома с гаражом Проект двухэтажного дома с гаражом Проект двухэтажного дома с гаражом

Модификации проектов

Внесение изменений и привязка к участку строительства

В любой из проектов от компании VIPplan - Кизляр по вашему желанию могут быть внесены изменения в материалы стен, материалы наружной отделки дома, а также будет произведена адаптация проекта под конкретный регион строительства (с учетом грунтов региона, геологических особенностей вашего участка и местных климатических условий) - БЕСПЛАТНО !!! (кроме проектов со скидкой и проектов наших партнеров).

Любой из проектов, размещенных на сайте kizlyar.vipplan.ru мы можем выполнить из требуемых вам строительных материалов: ячеистый бетон (газобетон, пеноблок), керамоблок, кирпич, шлакоблок, бетонный блок, дерево (брус, клееный брус), каркасная технология (деревянный каркас, металлокаркас (ЛСТК)).

Фасад дома и его наружную отделку так же возможно выполнить с применением различных облицовочных материалов: структурной штукатурки, (с утеплителем и без), сайдингом (пластиковый или металлосайдинг), фиброплитами, кирпича.

 
6 Избранные
проекты

Доставка проектов по России: Москва (Московская область), Санкт-Петербург (Ленинградская область), Краснодар, Ростов-на-Дону, Ставрополь, Сочи, Волгоград, Новосибирск, Белгород, Брянск, Воронеж, Саратов, Хабаровск, Астрахань, Нальчик, Владикавказ, Екатеринбург, Тюмень, Самара, Нижний Новгород, Казань, Пермь, Уфа, Челябинск, Красноярск, Ханты-Мансийск, Иркутск, Курган, Оренбург, Омск, Томск, Барнаул, Новокузнецк, Кемерово, Абакан, Чита, Якутск, Южно-Сахалинск, Петропавловск-Камчатский и страны ближнего зарубежья: Белоруссия, Украина, Казахстан