Добро пожаловать на http://vipplan.ru

Випплан Кизляр - это тысячи проектов домов в нашем каталоге!

Вы всегда сможете найти для себя проект дома вашей мечты! Даже если этого не случилось, мы готовы в любую минуту предложить проект индивидуального дома.

Забыли пароль?
Вы еще не регистрировались?

Перейдите по ссылке ниже на страницу регистрации.

Регистрация...

Внимание!!!

В проектную документацию могут быть внесены изменения любой сложности, в соответствии в Вашими пожеланиями!

Полезные статьи

Приготовление раствора для наливного пола

Если вы хотите чтобы пол получился ровным, наливные полы – лучший вариант. Особое внимание следует уделить приготовлению раствора. А все потому, что после нанесения на цементную стяжку или бетонное основание внести коррективы или изменить что-либо уже не получится. Поэтому к замешиванию раствора стоит подходить очень внимательно....

Мероприятия по получению разрешения на строительство в Кизляре

Хотите построить дом в Кизляре? Не знаете с чего начать? Для начала, нужно заказать проект, а после получить разрешение на строительство. ...

Проекты домов и коттеджей > Каталог проектов домов > Проект компактного одноэтажного коттеджа с мансардой и гаражом Vg1324

Проект компактного одноэтажного коттеджа с мансардой и гаражом Vg1324

Проект компактного одноэтажного коттеджа с мансардой и гаражом
Зарегистрируйтесь

Проект № Vg1324


Техническое описание
Общая площадь: 133.53 м2
Жилая площадь: 82.96 м2
Высота здания: 7.83 м
Размеры дома: 8.54м×13.24м
Кол-во комнат: 3
Цокольный этаж: нет
Гараж: нет
Мансарда: есть

Kонструкция
Фундамент: Монолитная ж/б плита
Перекрытия: Деревянные
Материал стен: Газобетон

Архитектурный раздел
Конструктивный раздел
АР+КР - 52 000 (Со скидкой 20%)
Проект индивидуального одноэтажного жилого дома с мансардой, размерами 8,54 х 13,24 м. Наружная отделка здания – металлосайдинг с покрытием ECOSTEEL (Экостил). Цоколь – камень. Кровля – металлочерепица. Фундамент – монолитная железобетонная плита. Наружные стены: газобетонные блоки, утеплитель экструдированный пенополистирол, металлосайдинг с покрытием ECOSTEEL (Экостил). Внутренние стены и перегородки – газобетонные блоки. Отделка вентканалов и дымоходов – штукатурка. Перемычки – монолитные. Пол первого этажа – пол по грунту. Чердачное перекрытие - по деревянным балкам с использованием теплошумоизоляционных материалов типа «URSA» в межбалочном пространстве. Крыша двускатная. Окна металлопластиковые, выполненные по индивидуальному заказу.
Генплан застройки участка / Паспорт проекта 7000 руб / 10000 руб
Инженерный раздел (полный) 67000 руб
Смета на строительство 33500 руб
Теплотехнический расчет материалов стен Бесплатно
Стоимость проекта со незначительнми изменениями 61650 руб
Стоимость проекта со средними изменениями* 71700 руб
Стоимость проекта со значительными изменениями** 74400 руб

План первого этажа


Гараж — 23,45 кв м
Бойлерная — 1,90 кв м
С/у — 3,42 кв м
Холл — 8,90 кв м
Прихожая — 7,20 кв м
Кладовая — 2,80 кв м
Кухня — 10,18 кв м
Гостиная — 18,12 кв м

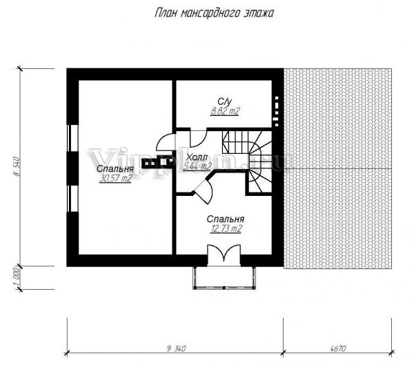
План мансардного этажа


Спальня — 12,73 кв м
Холл — 5,44 кв м
С/у — 8,82 кв м
Спальня — 30,57 кв м
Проект компактного одноэтажного коттеджа с мансардой и гаражом Проект компактного одноэтажного коттеджа с мансардой и гаражом Проект компактного одноэтажного коттеджа с мансардой и гаражом Проект компактного одноэтажного коттеджа с мансардой и гаражом

Модификации проектов

Внесение изменений и привязка к участку строительства

В любой из проектов от компании VIPplan - Кизляр по вашему желанию могут быть внесены изменения в материалы стен, материалы наружной отделки дома, а также будет произведена адаптация проекта под конкретный регион строительства (с учетом грунтов региона, геологических особенностей вашего участка и местных климатических условий) - БЕСПЛАТНО !!! (кроме проектов со скидкой и проектов наших партнеров).

Любой из проектов, размещенных на сайте kizlyar.vipplan.ru мы можем выполнить из требуемых вам строительных материалов: ячеистый бетон (газобетон, пеноблок), керамоблок, кирпич, шлакоблок, бетонный блок, дерево (брус, клееный брус), каркасная технология (деревянный каркас, металлокаркас (ЛСТК)).

Фасад дома и его наружную отделку так же возможно выполнить с применением различных облицовочных материалов: структурной штукатурки, (с утеплителем и без), сайдингом (пластиковый или металлосайдинг), фиброплитами, кирпича.

 
6 Избранные
проекты

Доставка проектов по России: Москва (Московская область), Санкт-Петербург (Ленинградская область), Краснодар, Ростов-на-Дону, Ставрополь, Сочи, Волгоград, Новосибирск, Белгород, Брянск, Воронеж, Саратов, Хабаровск, Астрахань, Нальчик, Владикавказ, Екатеринбург, Тюмень, Самара, Нижний Новгород, Казань, Пермь, Уфа, Челябинск, Красноярск, Ханты-Мансийск, Иркутск, Курган, Оренбург, Омск, Томск, Барнаул, Новокузнецк, Кемерово, Абакан, Чита, Якутск, Южно-Сахалинск, Петропавловск-Камчатский и страны ближнего зарубежья: Белоруссия, Украина, Казахстан