Добро пожаловать на http://vipplan.ru

Випплан Кизляр - это тысячи проектов домов в нашем каталоге!

Вы всегда сможете найти для себя проект дома вашей мечты! Даже если этого не случилось, мы готовы в любую минуту предложить проект индивидуального дома.

Забыли пароль?
Вы еще не регистрировались?

Перейдите по ссылке ниже на страницу регистрации.

Регистрация...

Внимание!!!

В проектную документацию могут быть внесены изменения любой сложности, в соответствии в Вашими пожеланиями!

Полезные статьи

Искусственный камень

Среди современных материалов, особого внимания заслуживает искусственный камень. Естественность и красота натурального камня очевидна. Но нужно реально оценивать свои возможности и присмотреться именно к искусственному камню, так как сам искуственный камень и стоимость производства работ с ним в Кизляре значительно дешевле чем натуральный....

Дом это прекрасное вложение

Современный рынок недвижимости диктует свои правила. Цены на землю и недвижимость в Кизляре постоянно растут и вынуждают по-другому смотреть на покупку собственного дома. Не только со стороны получения удобного, благоустроенного жилья, но и со стороны капитализации и инвестировании своих средств...

Проекты домов и коттеджей > Каталог проектов домов > Дом с мансардой, гаражом на 2 машины, навесом, террасой и балконом Vg1162

Дом с мансардой, гаражом на 2 машины, навесом, террасой и балконом Vg1162

Дом с мансардой, гаражом на 2 машины, навесом, террасой и балконом
Зарегистрируйтесь

Проект № Vg1162


Техническое описание
Общая площадь: 444.64 м2
Жилая площадь: 163.49 м2
Высота здания: 10.12 м
Размеры дома: 33.71м×27.94м
Кол-во комнат: 7
Цокольный этаж: нет
Гараж: нет
Мансарда: есть

Kонструкция
Фундамент: Монолитная ж/б плита
Перекрытия: Комбинированные
Материал стен: Газобетон

Архитектурный раздел
Конструктивный раздел
Инженерный раздел
АР+КР - 100 000 (Со скидкой 20%)
АР+КР+ИР - 255 750 (Со скидкой 50%)
Проект индивидуального одноэтажного жилого дома с мансардой с размерами здания 33,71x27,94м. Наружная отделка здания - фасадная штукатурка. Цоколь - отделка камнем. Фундамент - монолитная ж/б плита (под всей площадью дома). Наружные стены дома: газобетонные блоки, фасадная штукатурка. Внутренние стены - из газобетонных блоков. Перегородки выполнить из кирпича. Снаружи вентканалы и дымоходы оштукатуриваются. Перемычки - монолитные и сварные из профиля проката. Пол первого этажа - пол по монолитной плите. Перекрытие над первым этажом комбинированное: - монолитное, ж/б; - по деревянным балкам с использованием теплошумоизоляционных материалов типа "URSA" в межбалочном пространстве. Потолок мансардного этажа -по затяжкам стропильной системы. Крыша - многоскатная. Покрытие - металлочерепица. Окна - металлопластиковые, выполнить по индивидуальному заказу. Лестница - деревянная по металлическому каркасу, выполняется по индивидуальному заказу.
Генплан застройки участка / Паспорт проекта 7000 руб / 10000 руб
Инженерный раздел (полный) 155750 руб (222500 руб)
Смета на строительство 111250 руб
Теплотехнический расчет материалов стен Бесплатно
Стоимость проекта со незначительнми изменениями 113850 руб
Стоимость проекта со средними изменениями* 147300 руб
Стоимость проекта со значительными изменениями** 156200 руб

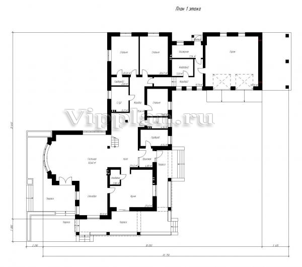
План первого этажа


Гараж — 50,12 кв м
Бойлерная — 7,74 кв м
Кладовая 2 — 7,03 кв м
Коридор 2 — 11,79 кв м
Спальня — 20,03 кв м
Спальня — 20,67 кв м
Гардероб 2 — 2,83 кв м
С/у 2 — 8,21 кв м
Коридор — 11,64 кв м
Спальня — 11,02 кв м
С/у — 4,36 кв м
Гардероб — 8,74 кв м
Прихожая — 4,89 кв м
Холл — 27,42 кв м
Кухня — 27,61кв м
Кладовая — 2,88 кв м
Гостиная — 50,60 кв м
Столовая — 18,33 кв м

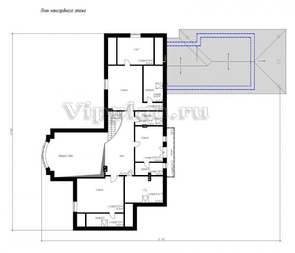
План мансардного этажа


С/у 2 — 20,13 кв м
Спальня — 34,22 кв м
Гардероб 4 — 14,35 кв м
Гардероб — 7,90 кв м
Спальня — 19,99 кв м
Гардероб 2 — 7,03 кв м
Балкон — 7,81 кв м
Холл — 29,41 кв м
С/у — 20,31 кв м
Спальня — 33,19 кв м
Гардероб 3 — 10,00 кв м
Дом с мансардой, гаражом на 2 машины, навесом, террасой и балконом Дом с мансардой, гаражом на 2 машины, навесом, террасой и балконом Дом с мансардой, гаражом на 2 машины, навесом, террасой и балконом Дом с мансардой, гаражом на 2 машины, навесом, террасой и балконом

Модификации проектов

Внесение изменений и привязка к участку строительства

В любой из проектов от компании VIPplan - Кизляр по вашему желанию могут быть внесены изменения в материалы стен, материалы наружной отделки дома, а также будет произведена адаптация проекта под конкретный регион строительства (с учетом грунтов региона, геологических особенностей вашего участка и местных климатических условий) - БЕСПЛАТНО !!! (кроме проектов со скидкой и проектов наших партнеров).

Любой из проектов, размещенных на сайте kizlyar.vipplan.ru мы можем выполнить из требуемых вам строительных материалов: ячеистый бетон (газобетон, пеноблок), керамоблок, кирпич, шлакоблок, бетонный блок, дерево (брус, клееный брус), каркасная технология (деревянный каркас, металлокаркас (ЛСТК)).

Фасад дома и его наружную отделку так же возможно выполнить с применением различных облицовочных материалов: структурной штукатурки, (с утеплителем и без), сайдингом (пластиковый или металлосайдинг), фиброплитами, кирпича.

 
6 Избранные
проекты

Доставка проектов по России: Москва (Московская область), Санкт-Петербург (Ленинградская область), Краснодар, Ростов-на-Дону, Ставрополь, Сочи, Волгоград, Новосибирск, Белгород, Брянск, Воронеж, Саратов, Хабаровск, Астрахань, Нальчик, Владикавказ, Екатеринбург, Тюмень, Самара, Нижний Новгород, Казань, Пермь, Уфа, Челябинск, Красноярск, Ханты-Мансийск, Иркутск, Курган, Оренбург, Омск, Томск, Барнаул, Новокузнецк, Кемерово, Абакан, Чита, Якутск, Южно-Сахалинск, Петропавловск-Камчатский и страны ближнего зарубежья: Белоруссия, Украина, Казахстан