Добро пожаловать на http://vipplan.ru

Випплан Кизляр - это тысячи проектов домов в нашем каталоге!

Вы всегда сможете найти для себя проект дома вашей мечты! Даже если этого не случилось, мы готовы в любую минуту предложить проект индивидуального дома.

Забыли пароль?
Вы еще не регистрировались?

Перейдите по ссылке ниже на страницу регистрации.

Регистрация...

Внимание!!!

В проектную документацию могут быть внесены изменения любой сложности, в соответствии в Вашими пожеланиями!

Полезные статьи

Проекты быстровозводимых домов и коттеджей в Кизляре

Некоторые люди до сих пор считают, что быстровозводимые дома представляют собой безликие, недолговечные, однотипные строения. Эти утверждения не соответствуют действительности. На данный момент, строительные технологии шагнули вперед и дома «быстрого приготовления» считаются эталоном комфорта, уюта и даже выделяются, в архитектурном плане, на фоне дорогих кирпичных коттеджей. Быстровозводимые дома не дорогие и изготавливаются в кратчайшие сроки....

Зачем нужен проект дома?

Зачем нужен проект? - спросите вы. Проект дома является важной и неотъемлемой частью при строительстве дома. После покупки проекта, вы получите разрешение на строительство, предоставив его в местную архитектуру, а после, с его помощью, построите дом....

Проекты домов и коттеджей > Каталог проектов домов > Одноэтажный дом с подвалом, гаражом на 2 машины и террасами Vg1087

Одноэтажный дом с подвалом, гаражом на 2 машины и террасами Vg1087

Одноэтажный дом с подвалом, гаражом на 2 машины и террасами
Зарегистрируйтесь

Проект № Vg1087


Техническое описание
Общая площадь: 172.88 м2
Жилая площадь: 78.91 м2
Высота здания: 6.68 м
Размеры дома: 14.54м×18.44м
Кол-во комнат: 5
Цокольный этаж: нет
Гараж: нет
Мансарда: нет

Kонструкция
Фундамент: Ленточный, монолитный ж/б
Перекрытия: Деревянные
Материал стен: Газобетон

Архитектурный раздел
Конструктивный раздел
Инженерный раздел
АР+КР - 56 000 (Со скидкой 20%)
АР+КР+ИР - 116 550 (Со скидкой 50%)
Проект индивидуального одноэтажного одноквартирного жилого дома с размерами 14,54 x 18,44 м. Наружная отделка здания – декоративная штукатурка и частично деревянные панели. Цоколь- камень. Фундамент – ленточный монолитный. Наружные стены запроектированы из: пенобетонных блоков, утеплителем и декоративной штукатурки. Внутренние стены и перегородки - из пенобетонных блоков. Перемычки - монолитные и сварные из профиля проката. Перекрытия чердачные – по деревянным балкам с заполнением межбалочного пространства утеплителем. Пол 1 этажа - пол по грунту. Крыша - многоскатная. Материал кровли - металлочерепица. Окна - металлопластиковые, выполненные по индивидуальному заказу. Лестница выполняется по индивидуальному заказу.
Генплан застройки участка / Паспорт проекта 7000 руб / 10000 руб
Инженерный раздел (полный) 60550 руб (86500 руб)
Смета на строительство 43250 руб
Теплотехнический расчет материалов стен Бесплатно
Стоимость проекта со незначительнми изменениями 65650 руб
Стоимость проекта со средними изменениями* 78700 руб
Стоимость проекта со значительными изменениями** 82100 руб

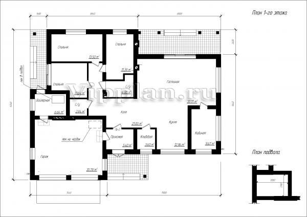
План первого этажа


Спальня — 13,50 кв м
Спальня — 11,39 кв м
С/у — 4,90 кв м
Спальня — 10,64 кв м
Холл — 21,83 кв м
Бойлерная — 6,64 кв м
С/у — 2,84 кв м
Гараж — 35,79 кв м
Прихожая — 5,40 кв м
Кладовая — 3,60 кв м
Гостиная — 33,71 кв м
Кухня — 12,96 кв м
Кабинет — 9,67 кв м
Одноэтажный дом с подвалом, гаражом на 2 машины и террасами Одноэтажный дом с подвалом, гаражом на 2 машины и террасами Одноэтажный дом с подвалом, гаражом на 2 машины и террасами Одноэтажный дом с подвалом, гаражом на 2 машины и террасами
Внесение изменений и привязка к участку строительства

В любой из проектов от компании VIPplan - Кизляр по вашему желанию могут быть внесены изменения в материалы стен, материалы наружной отделки дома, а также будет произведена адаптация проекта под конкретный регион строительства (с учетом грунтов региона, геологических особенностей вашего участка и местных климатических условий) - БЕСПЛАТНО !!! (кроме проектов со скидкой и проектов наших партнеров).

Любой из проектов, размещенных на сайте kizlyar.vipplan.ru мы можем выполнить из требуемых вам строительных материалов: ячеистый бетон (газобетон, пеноблок), керамоблок, кирпич, шлакоблок, бетонный блок, дерево (брус, клееный брус), каркасная технология (деревянный каркас, металлокаркас (ЛСТК)).

Фасад дома и его наружную отделку так же возможно выполнить с применением различных облицовочных материалов: структурной штукатурки, (с утеплителем и без), сайдингом (пластиковый или металлосайдинг), фиброплитами, кирпича.

 
6 Избранные
проекты

Доставка проектов по России: Москва (Московская область), Санкт-Петербург (Ленинградская область), Краснодар, Ростов-на-Дону, Ставрополь, Сочи, Волгоград, Новосибирск, Белгород, Брянск, Воронеж, Саратов, Хабаровск, Астрахань, Нальчик, Владикавказ, Екатеринбург, Тюмень, Самара, Нижний Новгород, Казань, Пермь, Уфа, Челябинск, Красноярск, Ханты-Мансийск, Иркутск, Курган, Оренбург, Омск, Томск, Барнаул, Новокузнецк, Кемерово, Абакан, Чита, Якутск, Южно-Сахалинск, Петропавловск-Камчатский и страны ближнего зарубежья: Белоруссия, Украина, Казахстан